Free Shipping for orders over $100
Drawer menu
Tax included and shipping calculated at checkout
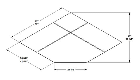
Black Steel Stove Board
This modular black steel hearth pad system is an ideal protection for combustible surfaces. Perfectly designed for corner placement under your wood stove, it effectively guards combustible surfaces against hot embers that may fall during loading. Insulated with 1/2" Micore® 300, offering an R-value of 1.03, this system ensures maximum safety while complying with CSA B365 (Canada) and NFPA 211 (United States) standards.
No appliance performance available for this product
No general features available for this product
No clearances available for this product
Consult the available manuals and leaflets for more information on performance, installation and use requirements, etc.